広島市西区大宮の駐車場(月極)物件第2駐車場(月極)
物件基本情報
| 建物種別 | 駐車場 |
|---|---|
| 所在地 | 広島市西区大宮1丁目17 |
| 交通・アクセス |
|
| 形態・形状 | 平面(アスファルト) |
| 収納可能サイズ | トラックなど大型車両不可 |
| 利用種目 | 賃貸駐車場(月極) |
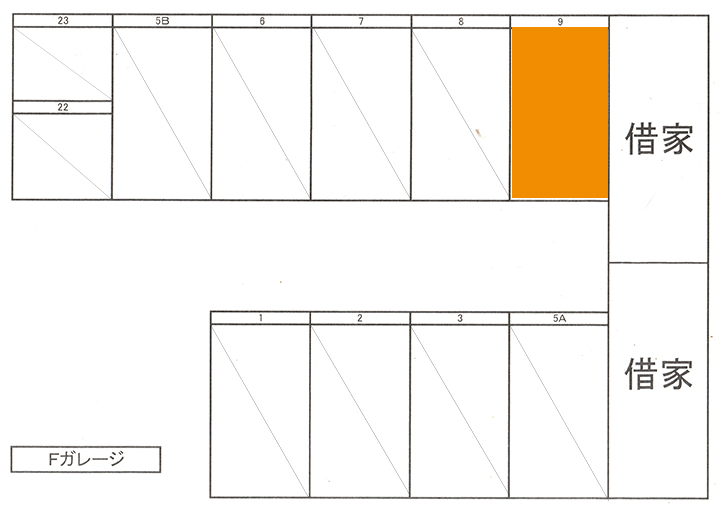
空き状況一覧
No.8.
| 賃料 | 13,000円 | 敷金(手数料) | |
|---|---|---|---|
| 礼金 | 保証金 | ||
| その他費用 | 契約期間 | ご契約時にご案内いたします。 | |
| 引渡時期 | 即日 | 取引形態 | 貸主 |
| 特記事項 |
|
||
| 車庫証明 | ご入用の際は、お気軽にご相談ください。 | ||
備考
情報更新日:2022/3/15
No.9.
| 賃料 | 13,000円 | 敷金(手数料) | |
|---|---|---|---|
| 礼金 | 保証金 | ||
| その他費用 | 契約期間 | ご契約時にご案内いたします。 | |
| 引渡時期 | 即日 | 取引形態 | 貸主 |
| 特記事項 |
|
||
| 車庫証明 | ご入用の際は、お気軽にご相談ください。 | ||
備考
情報更新日:2022/3/15
No.3.
| 賃料 | 13,000円 | 敷金(手数料) | |
|---|---|---|---|
| 礼金 | 保証金 | ||
| その他費用 | 契約期間 | ご契約時にご案内いたします。 | |
| 引渡時期 | 即日 | 取引形態 | 貸主 |
| 特記事項 |
|
||
| 車庫証明 | ご入用の際は、お気軽にご相談ください。 | ||
備考
情報更新日:2022/3/15
